Aller au contenu
Accueil
Agence
Projets
Contact
X
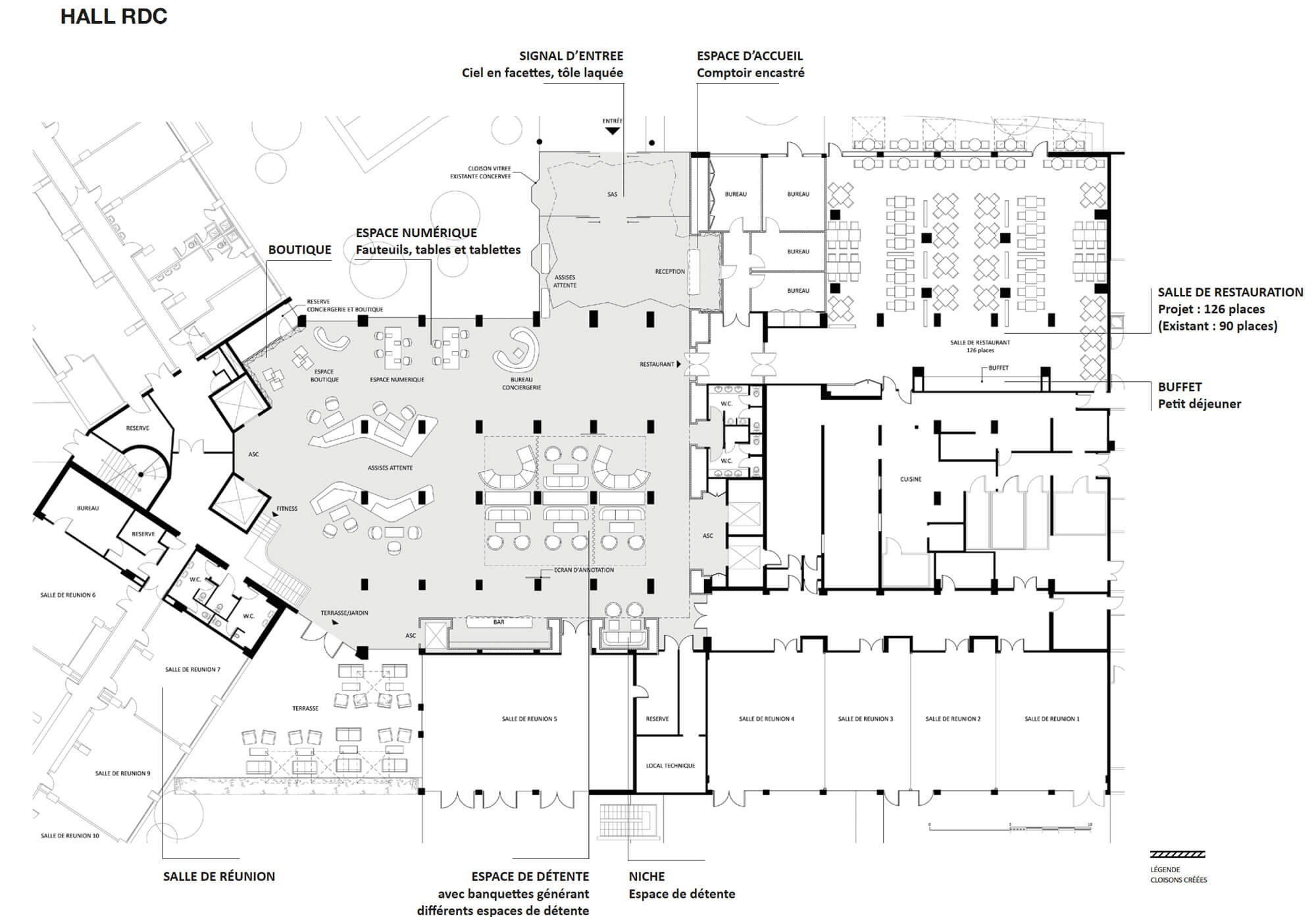
Hôtel Choice – Création d’un concept hôtelier
Roissy
Maîtrise d'ouvrage
CD&B
Architecte
Agence De Broissia Guimon & Associés
MISSION
Concours
Crédits photos
© Agence De Broissia Guimon & Associés
calendrier
Livré en juin 2016
Vous pourriez être intéressé(e) par :
Toutes nos réalisations